Seuraa uuden talon rakentamista

Kolmas Ruuhijärven nuorisoseurantalo on loppusuoralla
Ruuhijärven uusi nuorisoseurantalo on edennyt hienosti, ja rakennusprojekti on nyt loppusuoralla. Kolmas nuorisoseurantalo on noussut vauhdilla kylän yhteiseksi sydämeksi, ja tavoitteena on saada talo valmiiksi huhtikuun 2026 loppuun mennessä.
Edellinen NS-talo tuhoutui täysin tulipalossa 26.5.2024. Vaikka menetys oli suuri, päätös uuden talon rakentamisesta syntyi nopeasti. Syksyllä 2024 nuorisoseurassa käynnistettiin suunnittelu yhdessä vakuutusyhtiön kanssa, ja kumppaneiksi valikoituivat Rakennustoimisto Grönman Oy sekä arkkitehtisuunnittelusta vastannut Arkviiri.
Rakennushankkeelle haettiin KVR-urakkatarjouksia kahdeksalta eri rakennusyritykseltä, ja lopulta urakoitsijaksi valittiin Lehtisen Rakennus ja Kone Oy Vuolenkoskelta. Taloa ovat olleet toteuttamassa myös useat yhteistyökumppanit, ja hanke on saanut näkyvyyttä valtakunnallisesti asti, kun siitä kirjoitettiin myös Rakennuslehdessä.
Missä mennään nyt?
Rakennustyöt ovat edenneet tasaisesti koko syksyn, talven ja alkukevään ajan, ja projekti on pysynyt hyvin aikataulussa. Tällä hetkellä uusi NS-talo näyttää jo vahvasti siltä, mitä siitä pian tulee: valoisa, toimiva ja kyläläisten näköinen kokoontumispaikka.
Rakennuksessa on valmistunut muun muassa runko, katto, ikkunat, lattiavalu, eristystyöt sekä suuri osa talotekniikasta. Sisällä väliseinät ovat nousseet, pintoja on maalattu, akustiikkalevyjen asennus on käynnissä ja kalusteita sekä varusteita on jo kannettu paikoilleen. Myös terassin rakentaminen on aloitettu.
Jo nyt talossa on päästy näkemään, miten upealta erityisesti juhlasali näyttää. Suuret ikkunat avaavat näkymän suoraan Ruuhijärvelle, ja valo tulvii sisään kauniisti. Myös kyläläiset pääsivät helmikuussa avoimien ovien aikana tutustumaan rakennukseen, ja palaute oli innostunutta: salia kuvailtiin upeaksi, taloa valoisaksi ja kokonaisuutta toimivaksi.
Kestävä ja käytännöllinen kylätalo
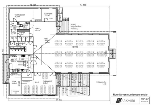
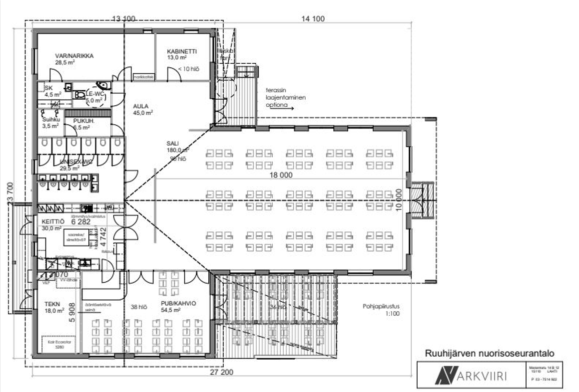
Uusi seurantalo on suunniteltu mahdollisimman toimivaksi ja kestävillä ratkaisuilla. Lämmitysmuotona on maalämpö, ja aurinkopaneeleille on tehty varaus. Taloon tulee noin 170 hengen tilat, ja vaikka rakennus on hieman edeltäjäänsä pienempi, siinä on kaikki olennainen: korkea juhlasali, kahvio, katettu terassi, kabinetti, keittiö ja varastotilat.
Keittiöstä tulee moderni, käytännöllinen ja hyvin kylän tarpeisiin sopiva. Se palvelee juhlia, kahvituksia, kerhoja ja tapahtumia, vaikka sitä ei ole suunniteltu varsinaiseksi ammattikeittiöksi.
Rakennus sijoittuu entistä lähemmäksi Korkeentietä, ja pihapiiriäkin on suunniteltu monikäyttöiseksi. Alueelle on jätetty lavavaraus esimerkiksi tulevia tapahtumia varten, ja piha viimeistellään kevään aikana yhdessä talkoilla.
Kohti seurantalon avajaisia
Tällä hetkellä katse on jo vahvasti viimeistelyvaiheessa ja tulevassa käyttöönotossa. Kevään aikana järjestetään vielä pihatalkoita ja muita valmisteluja, jotta uusi talo saadaan valmiiksi vastaanottamaan juhlia, tapahtumia ja kylän yhteisiä hetkiä.
Kolmas Ruuhijärven nuorisoseurantalo ei ole vain rakennus. Se on osoitus siitä, mitä yhteisöllä, sitkeydellä ja yhdessä tekemisellä voidaan saada aikaan.
Pian Ruuhijärvellä juhlitaan taas omalla mäellä.





